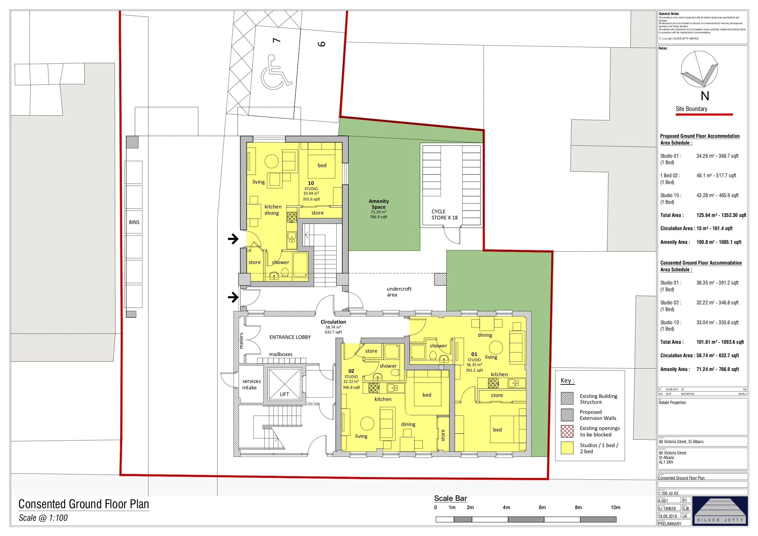
60 Victoria Street—St Albans

Having achieved full planning permission, NL Property instructed Silver Jetty to review the plans in order to add value to the apartments for the rental market. We collaborated with local agents and the client and with some careful and creative planning arrived at a positive outcome with a significantly enhanced GDV and improved plan layouts.

Julian Amos